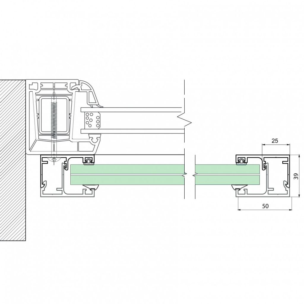
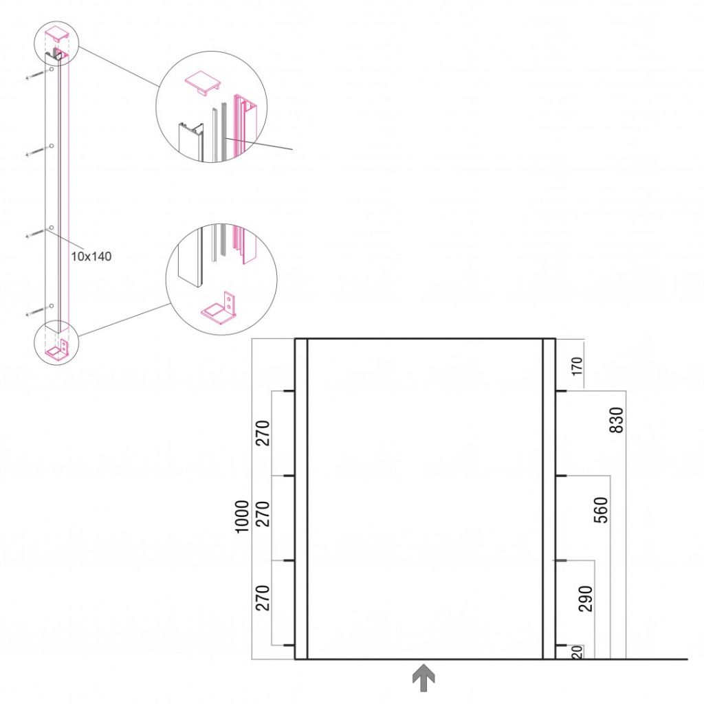
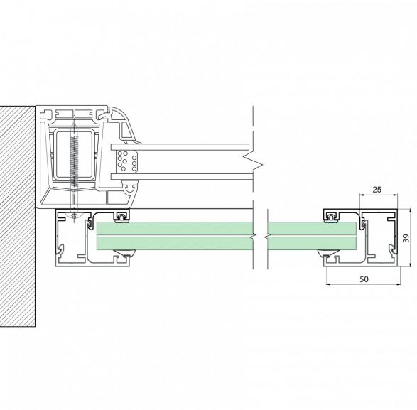
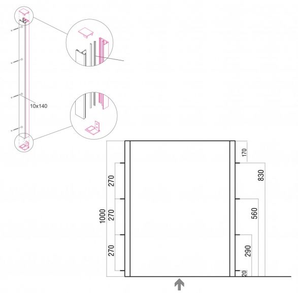
Profil naokienny 100cm do balustrady francuskiej - wykończenie szczotkowane
Szukasz eleganckiego balkonu francuskiego z łatwym i szybkim montażem? Nasz profil naokienny szczotkowany to idealne rozwiązanie dla nowoczesnych elewacji. Satynowe wykończenie nadaje balustradzie ekskluzywny i elegancki wygląd, a montaż bez konieczności wiercenia w szkle oszczędza Twój czas i eliminuje ryzyko uszkodzenia szyby.











