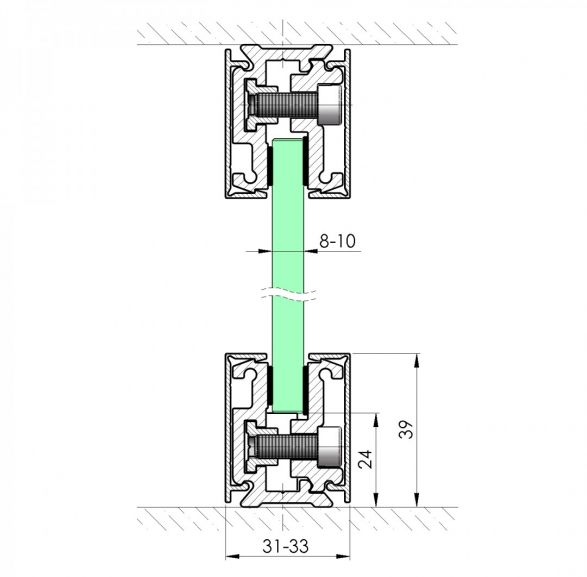
Profil montażowy szkła ścianki działowej lub przeszklenia, montaż od góry.
Dla szkła o grubości 8 - 10,76 [mm].
Zestaw oklinowania i uszczelek w zestawie.
Listwa zaciskowa została zaprojektowana z myślą o prostym i szybkim montażu ścianek działowych oraz przeszkleń, dzięki czemu idealnie sprawdzi się zarówno w domach jednorodzinnych, jak i w innych pomieszczeniach. Wykonana z aluminium, listwa charakteryzuje się wysoką wytrzymałością i odpornością na uszkodzenia mechaniczne. Dodatkowo, jej design z blendą maskującą śruby montażowe zapewnia estetyczny wygląd i pozwala na łatwe ukrycie śrub montażowych.









